
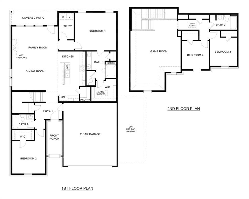
New! Amazing two story floor plan! Four bedrooms, three full baths, with large game room. Home includes, island kitchen, granite counters throughout, LED lighting, full sprinkler system, professionally engineered post tension foundation, and much more! Welcome to Fireside by the Lake! Conveniently located just 2 miles from Interstate 30, this beautiful community gets its name due to its proximity of Lake Ray Hubbard. Here at Fireside, you can experience the convenience of easy access highways, while enjoying a serene and beautiful location outside of the city. Fireside by the Lake is also nestled within the highly regarded Garland ISD. Don’t miss out on this opportunity, schedule a tour of Fireside by the Lake today and discover why it’s the perfect place to call home!
| 7 hours ago | Listing updated with changes from the MLS® | |
| 7 hours ago | Listing first seen on site |
Our team of real estate agents is very experienced in all aspects of real estate in the North Texas area. Our contacts in the industry among builders, surveyors, and land planners are invaluable for our clients. We are looking forward to serving you and showing some of the finest homes in the North Texas area! Contact us using this form or give us a call, and let’s get started!
We respect your privacy! Your information WILL NOT BE SHARED, SOLD, or RENTED to anyone, for any reason outside the course of normal real estate exchange.
Our mission is to ensure your home buying, home selling, or relocation process are stress-free by leveraging our vast knowledge of local markets and strong negotiating skills to help you get the best price on your home.
The real estate market is changing every day. You need an experienced real estate team like C4 Home and Land, who tracks interest rates and buying and selling market trends, to help you decide the best time to buy or sell a home.
© 2024 North Texas Real Estate Information Systems. All rights reserved. IDX information is provided exclusively for consumers’ personal, non-commercial use and may not be used for any purpose other than to identify prospective properties consumers may be interested in purchasing. Information is deemed reliable but is not guaranteed accurate by the MLS or C4 Home and Land Team. The data relating to real estate for sale or lease on this web site comes in part from NTREIS. Real estate listings held by brokerage firms other than C4 Home and Land Team are marked with the NTREIS logo or an abbreviated logo and detailed information about them includes the name of the listing broker.
© 2025 C4 Home and Land Team, PLLC. All rights reserved
Did you know? You can invite friends and family to your search. They can join your search, rate and discuss listings with you.