Call an Agent Today!
214-760-6770 - DFW
903-560-4975 - Fannin County

Save
Ask
Tour
Hide
Share
$425,000
28 Days On Site

2200 Traders Road 204
Greenville, TX 75402

For Sale|Office|Active
0
Beds
0
Total Baths
1,250
SqFt
$340
/SqFt
2025
Built
Subdivision:
None
County:
Hunt
Call Now: 214-760-6770
Is this the listing for you? We can help make it yours.
214-760-6770
2200 Traders Road 2042200 Traders Road 2042200 Traders Road 2042200 Traders Road 204
Save
Ask
Tour
Hide
Share

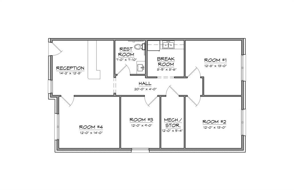
Each newly built office condos will be built for professionals will include Reception area, Multiple office, break area, restroom and covered front entry with approximately 1250 under roof. 5 Parking spaces per unit. Located in Greenville .5 miles from I30. Easy access to TH Hwy 34, Roy Warren Parkway, FM1570 and more. We have already started construction and have poured the slabs Sept 19-Sept 30th. Units will be available by January 2026. Reserve your unit now before they are gone. 20 Units , but only 18 left to pick from now. 4996sq ft whole building is also an option.

Save
Ask
Tour
Hide
Share
Listing Snapshot
Price 
$425,000
Days On Site 
28 Days
Bedrooms 
N/A
Inside Area (SqFt) 
1,250 sqft
Total Baths 
N/A
Full Baths 
N/A
Partial Baths 
N/A
Lot Size 
2 Acres
Year Built 
2025
MLS® Number 
21065978
Status 
Active
Property Tax 
N/A
HOA/Condo/Coop Fees 
N/A
Sq Ft Source 
Builder
Friends & Family
Recent Activity
a week agoListing updated with changes from the MLS®
4 weeks agoListing first seen on site
General Features
Acres 
2
Foundation 
Slab
Number Of Stories 
1
Parking 
Common
Property Condition 
New Construction
Property Sub Type 
Office
Security 
PrewiredSecurity LightsSmoke Detector(s)
SqFt Total 
1250
Utilities 
Electricity ConnectedPhone Available
Water Source 
Public
Zoning 
Commercial
Interior Features
Cooling 
Central AirElectric
Flooring 
Vinyl
Heating 
CentralElectric
Save
Ask
Tour
Hide
Share
Exterior Features
Construction Details 
StoneStone VeneerPlaster
Road Frontage 
City Street
Roof 
Composition
Community Features
Financing Terms Available 
Conventional
Listing courtesy of Toni Spray of Mckinney Real Estate Services toni@tonispray.com



© 2020 North Texas Real Estate Information Systems. All rights reserved. Information is deemed reliable but is not guaranteed accurate by the MLS or NTREIS. The information being provided is for the consumer's personal, non-commercial use, and may not be reproduced, redistributed, or used for any purpose other than to identify prospective properties consumers may be interested in purchasing.
Last checked: 2025-10-19 06:07 AM CDT

Neighborhood & Commute
Source: Walkscore
Disclosure: Community information and market data powered by Constellation Data Labs. Information is deemed reliable but not guaranteed.
Save
Ask
Tour
Hide
Share

Let Us Help You Find The Perfect North TX Homes For Sale!

Our team of real estate agents is very experienced in all aspects of real estate in the North Texas area. Our contacts in the industry among builders, surveyors, and land planners are invaluable for our clients. We are looking forward to serving you and showing some of the finest homes in the North Texas area! Contact us using this form or give us a call, and let’s get started!

C4 Home and Land Team

Phone: +1 214-225-9545

101 E. Park Blvd. ,Ste 600 Plano, TX 75074

We respect your privacy! Your information WILL NOT BE SHARED, SOLD, or RENTED to anyone, for any reason outside the course of normal real estate exchange.