Call an Agent Today!
214-760-6770 - DFW
903-560-4975 - Fannin County

Save
Ask
Tour
Hide
Share
$3,500,000
29 Days On Site

1000 US 79
Henderson, TX 75652

For Sale|Business|Active
0
Beds
0
Total Baths
51,000
SqFt
$69
/SqFt
1968
Built
Subdivision:
BENNET SUR
County:
Rusk
Call Now: 214-760-6770
Is this the listing for you? We can help make it yours.
214-760-6770
1000 US 791000 US 791000 US 791000 US 79
Save
Ask
Tour
Hide
Share

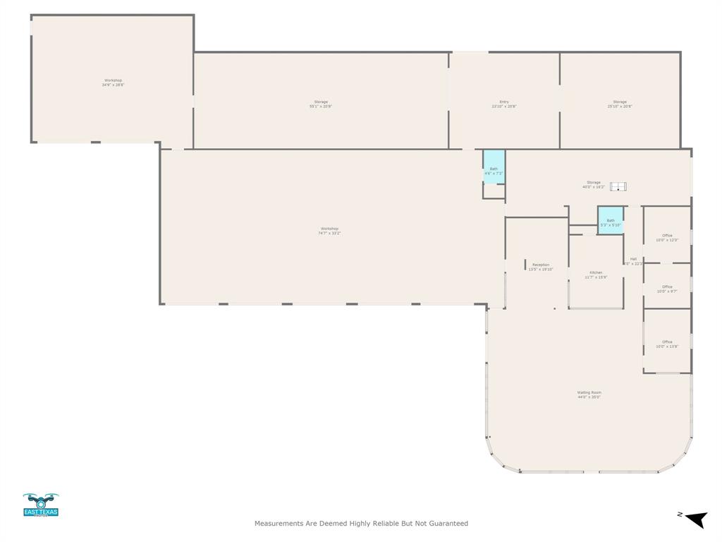
FOR SALE Successful Tire & Service Business for Sale Prime Hwy Corner Location, Henderson TX Located on the corner of a main highway and busy cross street in Henderson, this established tire retail and service center offers excellent visibility,heavy traffic counts, and a strong reputation in the community. The business combines retail tire sales, full tire service, andlight mechanical repair, making it a one-stop shop for local drivers and fleet customers. Property Overview Approx. 51,000 plus Sq. Ft. Total Main Building Reception Area Large welcoming space for customer check in and waiting. Offices 3, Privateoffices for management, sales, and administrative use. Bathrooms 3, Conveniently located throughout the facility for staff andcustomers. Storage Rooms 3, Secure and organized rooms for tools, equipment, and parts. Service Shop 6 Bays Fullyequipped for tire changes, balancing, rotations, alignments, and small mechanical services. High Ceilings & Wide Access Designed to accommodate cars, light trucks, and commercial vehicles. Warehouse Facility Huge Storage Capacity Perfect forlarge tire inventory, bulk parts, and future business growth. Connected to Main Building Joined by a roofed open area for easy loading unloading while protected from weather. Additional Buildings Total of 3 Flexible use for storage, rental, or expansioninto related services.

Save
Ask
Tour
Hide
Share
Listing Snapshot
Price 
$3,500,000
Days On Site 
29 Days
Bedrooms 
N/A
Inside Area (SqFt) 
51,000 sqft
Total Baths 
N/A
Full Baths 
N/A
Partial Baths 
N/A
Lot Size 
1.42 Acres
Year Built 
1968
MLS® Number 
21065021
Status 
Active
Property Tax 
N/A
HOA/Condo/Coop Fees 
N/A
Sq Ft Source 
Appraiser
Friends & Family
Recent Activity
4 weeks agoListing updated with changes from the MLS®
4 weeks agoListing first seen on site
General Features
Acres 
1.42
Foundation 
Concrete Perimeter
Number Of Stories 
1
Parking 
Concrete
Property Sub Type 
Business
Sewer 
Public Sewer
Special Circumstances 
Standard
SqFt Total 
51000
Utilities 
Electricity Connected
Water Source 
Public
Zoning 
COMMERCIAL
Interior Features
Cooling 
Central Air
Flooring 
ConcreteLaminate
Heating 
CentralElectric
Save
Ask
Tour
Hide
Share
Exterior Features
Construction Details 
BrickMetal Siding
Roof 
Metal
Listing courtesy of Stephanie Sheffield of Miller Homes Group ssheffield@millerhomesgroup.com



© 2020 North Texas Real Estate Information Systems. All rights reserved. Information is deemed reliable but is not guaranteed accurate by the MLS or NTREIS. The information being provided is for the consumer's personal, non-commercial use, and may not be reproduced, redistributed, or used for any purpose other than to identify prospective properties consumers may be interested in purchasing.
Last checked: 2025-10-19 06:02 AM CDT

Neighborhood & Commute
Source: Walkscore
Disclosure: Community information and market data powered by Constellation Data Labs. Information is deemed reliable but not guaranteed.
Save
Ask
Tour
Hide
Share

Let Us Help You Find The Perfect North TX Homes For Sale!

Our team of real estate agents is very experienced in all aspects of real estate in the North Texas area. Our contacts in the industry among builders, surveyors, and land planners are invaluable for our clients. We are looking forward to serving you and showing some of the finest homes in the North Texas area! Contact us using this form or give us a call, and let’s get started!

C4 Home and Land Team

Phone: +1 214-225-9545

101 E. Park Blvd. ,Ste 600 Plano, TX 75074

We respect your privacy! Your information WILL NOT BE SHARED, SOLD, or RENTED to anyone, for any reason outside the course of normal real estate exchange.